Project Portfolio
Shane Cary
Home
Retail
Residential
Institutional
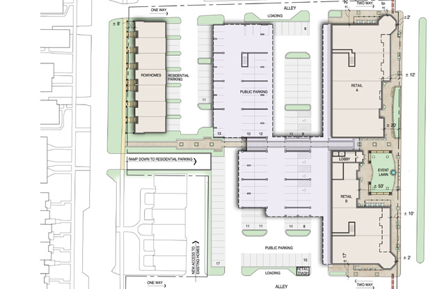
Elmhurst Planned Development – Mixed-Use img05
← Return to entry